<
  • 编号: DC0318

  • 层数: 三层

  • 结构形式: 框架结构

  • 主体造价: 42-50万

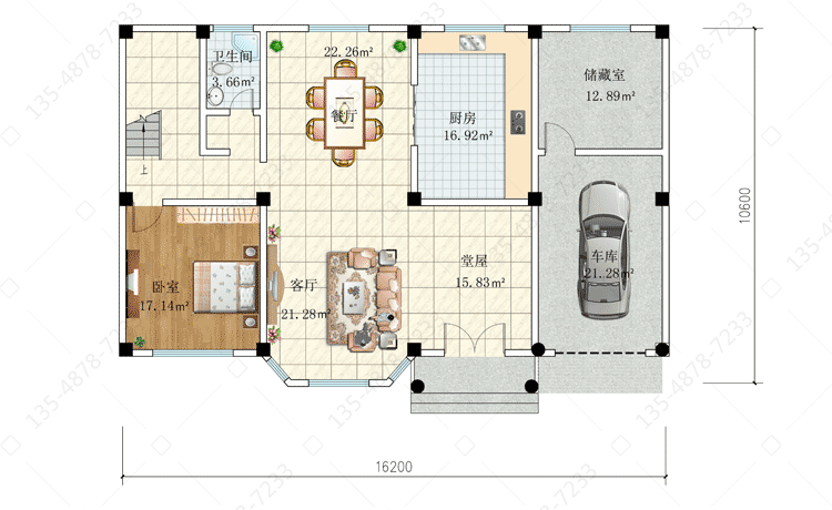
  • 开间:16.2米

  • 进深:10.6米

  • 占地面积: 165.79平方米

  • 建筑面积: 412.61平方米

>>图纸内容

  • 建 筑 图:建筑施工总说明、建筑构造设计说明、一层平面图、二层平面图、三层平面图、屋顶平面图、正立面图、背立面图、左立面图、右立面图、1-1剖面图、门斗大样图、楼梯大样图、节点大样图、门窗表

  • 结 构 图:结构设计总说明、结构常用大样图、基础平面布置图、基础柱定位图、一层柱定位图、二层柱定位图、三层柱定位图、顶层柱定位图、一层底梁平法施工图、一层顶梁平法施工图、二层顶梁平法施工图、三层顶梁平法施工图、屋顶梁平法施工图、一层底板结构平面图、一层顶板结构平面图、二层顶板结构平面图、三层顶板结构平面图、顶层顶板结构平面图、楼梯配筋图

  • 给排水图:给排水设计总说明、一层给排水平面图、二层给排水平面图、三层给排水平面图、屋顶给排水平面图、卫生间大样图、给排水系统图

  • 电 气 图:电气设计说明、设备材料表、等电位联结做法、配电系统图、弱电系统图、配电干线图、一层照明平面图、二层照明平面图、三层照明平面图、一层插座平面图、二层插座平面图、三层插座平面图、一层弱电平面图、二层弱电平面图、三层弱电平面图、基础接地平面图、屋顶防雷平面图

>>设计功能

  • 一 层:堂屋、客厅(中空)、卧室、厨房、餐厅、卫生间、储藏室、车库

  • 二 层:客厅、卧室(附露台)、3卧室、卫生间

  • 三 层:客厅、2卧室、娱乐室、卫生间、露台

本套图纸有施工图67张,效果图2张,包打印(效果图为彩图,施工图为A3大图),快递包邮,无电子版

去微信